Проект дачного туалета, вполне простого и традиционного для большинства людей, предусматривает наличие выгребной ямы и установленным над ней небольшим деревянным домиком. Разумеется, существует много вариантов постройки дачного туалета, каждый из которых обладает своими достоинствами:
- Торфяной туалет. В роли утеплителя выступает торф или опилки, благодаря которым отходы преобразуются в удобрения. Сухо, чисто и экологично.


- Компостный туалет. Вариант, из-за своей монументальности больше подходящий для загородного дома, нежели дачи.


- Биотуалет. Компактный и лёгкий вариант, выпускаемый многими производителями. Обладают ёмкостями для воды и отходов. Неплохая замена домашнему туалету. По причине использования химических веществ получение компоста невозможно, так как конечным результатом являются химические отходы.
Традиционный деревянный дачный туалет представляет собой отдельно стоящую постройку с выгребной ямой под ним. Выгребная яма выкладывается из колодезных колец или кирпича, в некоторых случаях используются автомобильные покрышки или пластиковая бочка без дна.


Строительство дачного туалета
Несмотря на то, что на строительство туалета необходимо не так много времени и сил, все работы должны проводиться в полном соответствии с требуемой технологией. Прежде чем начинать возведение, следует тщательно продумать конструкцию сооружения, создать эскиз, прикинуть будущие расходы и подобрать наиболее удобное место для его установки.


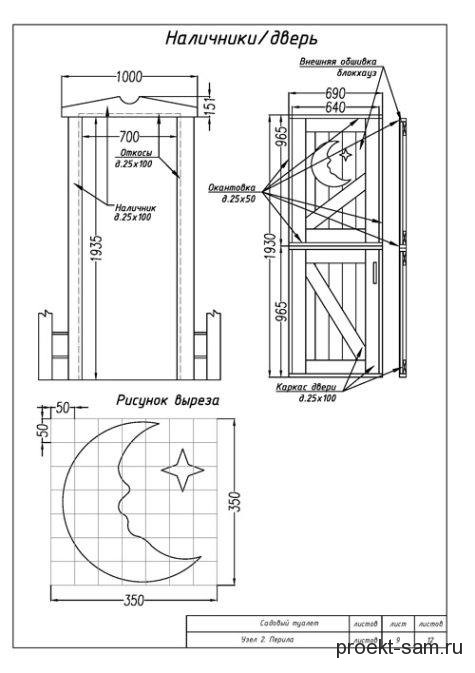
Размеры дачного туалета обычно следующие: высота задней стенки 1,9 м, передней – 2,1 м, длина 1,3 м, ширина – 1,1 м.


Стандартный проект дачного туалета предусматривает наличие септика (ямы), обшивки, каркаса, сиденья с отверстием, окошка, двери, пола, внутренней отделки и крыши.


Строительство туалета для дачи условно можно поделить на несколько этапов:
- Обустройство септика.
- Создание каркаса из бруса.
- Обшивка каркаса досками с дальнейшей настилкой пола.
- Выпиливание отверстия в сиденье.
- Подготовка основания для установки кабины на яму.
- Установка кабины.
- Обустройство крыши.
- Установка двери.
- Проведение внешней и внутренней отделки.
Как только вы определились с местом, на котором будет осуществляться установка дачного туалета, можно начинать обустраивать выгребную яму. В этом случае многими дачниками используется следующий способ: когда заполняется предварительно вырытая яма для дачного туалета, выкапывается новая, после чего осуществляется перенос туалета на новое место. Заполненную яму необходимо тщательно продезинфицировать и закопать.


К вопросу обустройства септика можно подойти ещё более серьезно, если выкопать яму глубиной 1,5 метра и устроить на её дне дренаж из щебня толщиной в пределах 15-20см. В этой ситуации желательно использовать специальные реактивы для биотуалетов, способствующие расщеплению твердых масс, благодаря чему жидкость через дренаж уходит в землю.
После того, как завершено обустройство ямы, можно начинать изготовление каркаса. Для подобных целей используется, как правило, брус 100х100. Здесь потребуется точная схема дачного туалета и строительный уровень. Каркас является основой туалета, поэтому к вопросам его выбора следует подходить очень тщательно.


Балки для крыши и сиденье необходимо монтировать в процессе сборки самого каркаса.


Чтобы обеспечить прочную установку туалета, основные 4 бруса должны быть длиннее планируемой высоты туалета примерно на 40-50см. Они вкапываются в землю и при необходимости бетонируются.
Прежде чем осуществлять установку, готовый каркас необходимо обшить досками, после чего настелить пол, выпилить окошко в стене и отверстие в сиденье. Затем осуществляется настил шиферной кровли, навешиваются двери, производится внутренняя и внешняя отделка.


Прежде чем начинать строительство туалета, следует узнать точную глубину грунтовых вод на вашем участке. В том случае, если воды залегают выше 2,5 м, то обустройства обычной выгребной ямы не хватит – придётся заниматься установкой специального готового септика, с качественным обеспечением его гидроизоляции.
При выборе места для установки туалета, необходимо учитывать направление ветра, в целях уменьшения неприятного запаха по всему дачному участку. При строительстве дачных туалетов следует помнить о том, что их запрещено размещать на расстоянии 35 метров от скважин и колодцев с питьевой водой.
На этом видео можете посмотреть, как сделать дачный туалет своими руками.