Живя в коттедже или имея дачу с домиком и баней, многие ставят в помещениях или во дворе лавку. Если в бане ее используют только по прямому назначению – для сидения, уличная может ещё и украшать ландшафт.
Высоту скамейки подбирают индивидуально. Для человека высокого роста или ребёнка она будет неодинаковой, но есть среднестатистический размер, удобный для большинства. Внешний вид, в зависимости от материала и творческой фантазии изготовителя, бывает весьма разнообразным.

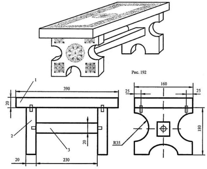
Оптимальные размеры
Скамейки бывают как стационарными, так и трансформерами, что позволяет убирать их на зиму под крышу. Правда, складные не так разнообразны по дизайну, и могут ни с чем не сочетаться, но имеют традиционные размеры.

Параметры скамеек, которые считаются удобными:
- Ширина лавки — в беседке или в бане (если только это не полок для парной) варьируется в пределах 370-500 мм.
- Стандартная высота лавки (сиденья) 400-500 мм.
- Высота спинки 450-550 мм с наклоном не более 45 и не менее 15 градусов.
- Высота боковых подлокотников – 180-220 мм.
- Длина изделия в среднем 2,2 м.


В саду, в бане и тем более в беседке, можно установить полукруглую скамью. Не считая радиуса закругления, все остальные габариты у неё такие же.

Скамейки для сада и беседки
Даже имея лишь кооперативный дачный участок, люди выезжают туда не только ради огородничества, но и для отдыха в тишине, на природе. Тут-то и пригодится удобная скамеечка в беседке или зелёном уголке сада.






Стилизация внешнего облика
Этому предмету архитекторы уделяли внимание всегда, начиная с эпохи Возрождения. Именно тогда прочные и конструктивно простые лавки стали уступать место изделиям изысканной формы, занимающим достойное место в дворцовых садах.
| Стиль | Из чего можно сделать |
![]() Классика |
Классическая скамья имеет спинку и подлокотники, которые являются декоративным элементом.
Для украшения используют растительные орнаменты, параллельные планки, элементы в виде лестничных балясин. Материал – натуральный камень, древесина, кованый и литой металл. |
![]() Французский |
У такой лавки тоже есть поручни и спинка, но они более изящны и замысловаты.
Стандартная ширина скамейки такая же –45 см, но высота больше, чем у банной лавки: 48-50 см. Такая лавочка стоит на красиво изогнутых ножках, из кованого металла, дерева или в виде диванчика с закруглёнными подлокотниками. Если это французское кантри (прованс), скамейка имеет более простые формы с крестообразной или параллельно-вертикальной раскладкой элементов.
|
![]() Кантри (деревенский) |
Многим импонирует кантри – не французский, а самый что ни на есть русский. Такую лавку отличает простота, массивность, природная фактура древесины, не закрываемая краской.
Это может быть традиционная широкая лавка без спинки или полноценная скамья. Для изготовления применяют доску, брус, более грубый и массивный пиломатериал в виде полубревна или даже хорошо отшлифованную и покрытую лаком необрезную доску. |
![]() Лофт |
Материал для скамеек в стиле лофт – металлопрокат, кирпич, бетонные блоки, монолитный бетон. Дерево используют реже, исключительно для сиденья и спинки.
Какой бы размер не имели опорные детали, оптимальная высота лавки в пределах 45 см (плюс минус 2-3 см), чтобы на ней было удобно сидеть. Чертежи скамеек из профильной трубы представлены на нашем сайте. |
![]() Хай-тек |
Материалы используют искусственные. Кроме металла, это: композитная древесина, пластик, полимербетон. Формы чаще геометрические, но не всегда правильные, с асимметрией. |
![]() Модерн |
Стилю модерн присущи замысловатые формы. В интерьерах они смотрятся вычурно, а вот в ландшафт вписываются идеально. |
![]() Японский |
Стиль проповедует простоту, а лавка для японцев – неотъемлемая частью даже в доме, не говоря уже о саде. Скамейка может быть из дерева и/или металла, со стилизацией под плетёную циновку.
Высота лавки в беседке в японском стиле может быть ниже сантиметров на 5 от стандарта, а ширина на столько же больше.
|
![]() Биотек (Эко) |
Стиль эко близок к кантри. Главный материал – древесина. Но в кантри это обычный пиленый или рубленый материал, а в эко можно использовать необрезную доску, пни и даже неокоренное бревно, в котором сиденье выдалбывается. |
Скамьи для зонирования и их функциональность
Кроме функции садовой мебели, лавка используется как зонирующий инструмент. Ведь в саду может быть терраса с обеденной зоной, цветник, бассейн или баня с верандой под одной крышей.
Лавочка – начало или логическое завершение такой зоны. Варианты воплощения на фото:






















В зависимости от функции скамейки бывают:
Парадные
Должны соответствовать стилю дома, так как их размещают перед входом. Гармонично смотрится кованая скамейка, детали которой аналогичны элементам забора, крыльца или ставен (варианты кованной мебели представлены на нашем сайте).

Обеденные
Обычно делают в комплексе со столом в летней кухне, беседке или террасе. Рядом часто устанавливают мангал или барбекю.
Читайте на нашем сайте: оформление дизайна беседки.

Правда, столик не обязательно обеденный (высотой 750-800 см), он может быть и чайным (высотой 520-550 мм).
Для отдыха
Устанавливают в укромных уголках, они предназначены не только для сидения. Благодаря большей ширине и матрасу или подушкам, на них можно лежать. Такая скамейка должна гармонично вписываться в ландшафт.

Для огорода
Самый простой тип, на котором можно посидеть в перерывах между пропалыванием грядок, такие модели лавочек можно сделать из поддонов.

Принцип изготовления скамейки
Легче своими руками изготовить деревянную скамейку для бани или огорода, ведь этот материал проще обрабатывать.
Ему, как металлу, не нужен сварочный аппарат. Можно обойтись без профессиональных плотницких инструментов.
Главное, заранее сделать чертеж скамейки из дерева, чтобы правильно рассчитать материал, а бруски или доску могут напилить по размеру прямо в магазине.
Сборка самой простой скамьи:
| Шаги, фото | Комментарий |
![]() Сборка сиденья |
Сиденье лавки собирают из брусков сечением 150*50 мм, монтируемых с небольшим зазором. Из этого же пиломатериала вырезаны 2 короткие перемычки, соединяющие доски. |
![]() Установка ножек |
Длину перемычек подбирают с расчётом, чтобы она заходила на крайние бруски, но оставалось место для ножек. Ставят их не по краям сиденья, а с отступом 15-20 см. |
![]() Установка распорок |
Чтобы ножки без проблем выдерживали вес 2-3 человек, нужна жёсткая обвязка. На середине их высоты с внутренней стороны к ним монтируют распорки. Они компенсируют разницу между шириной перекладины и расстоянием между ножками. |
![]() Монтаж перекладины |
Между распорками устанавливают перекладину – такой же брусок, какой использовался для сборки сиденья, только короче.
Все соединения выполняют на шкантах, с предварительной промазкой столярным клеем. Можно использовать и саморезы, но только они должны быть оцинкованными.
|
![]() Готовое изделие |
Остаётся только подшлифовать поверхности, покрасить или вскрыть лаком. |
Заключение
Выше представлен самый простой тип, без изысков. Подобную конструкцию можно сделать более привлекательной. Например, вырезать фигурные ножки, как на фото:

Придать готовому изделию изыск можно разными способами: брашированием или обжигом древесины, нанесением рисунков с помощью штампа или трафарета, выбора ярких красок.

Проявив фантазию, можно сделать скамью, например, из кухонной столешницы с облицовкой мозаикой, или из старых стульев с красивыми фигурными ножками.