Скамейка для отдыха на свежем воздухе должна быть на любом придомовом участке. Для нее берут разные материалы, но чаще речь идет о симбиозе металла и дерева – из первого делается прочный каркас, а из второго – настил для него.
Скамейки из профильной трубы популярны, этот материал имеет много достоинств, а результат получается высокой прочности и качества.

Различные варианты скамеек из металла
| Вид скамейки, фото | Описание: |
![]() Скамейка из профильной трубы квадратного сечения |
При низких затратах металла, можно соорудить конструкции разной сложности. |
![]() Лавочка с клумбой |
Конструкции из металла могут быть разного вида. Многие придумывают для них дополнительный функционал, например, встраивают небольшую клумбу, в которой можно выращивать настоящие цветы. |
![]() Скамейка из металла и дерева |
Металл в садовой мебели практически не используют. Его обычно дополняют менее теплопроводными материалами. |
![]() Скамейка со спинкой из металлической кровати |
Для этой скамейки в ход пошла старая железная кровать. Металл получил новую жизнь. |
![]() Скамейка из старой чугунной ванны |
Тут для скамьи была использована старая чугунная ванная. Оригинальное решение. |
![]() Лавочка трансформер из металла |
Лавочки могут иметь сложную и даже подвижную конструкцию, позволяющую им раскладываться из скамейки со спинкой в лавку со столиком. |
Скамейки могут быть разной формы — со спинкой, без нее, быть широкой или узкой, совмещенной со столом в одну конструкцию. Простые и дешевые варианты можно сварить даже из арматуры, или стального уголка.






























Плюсы использования металлических труб в качестве каркаса
Для профилированной трубы используют углеродистая низколегированная сталь, обладающая хорошей эластичностью. Она имеет высокие эксплуатационные характеристики, применяется как для промышленного, так и для частного строительства.
Этот материал легко гнуть, сваривать или резать, из него можно сделать конструкции любого уровня сложности, если есть представления о правильном построении каркасов и имеются знания по основам работы с металлом.
В частном строительстве такие трубы применяют обычно для изготовления беседок, арок, навесов, каркасных сараев, заборов, ворот, лестниц, теплиц, садовых качелей и так далее.






Изделия имеют следующие характеристики:
- Небольшой общий вес за счет каркасного строения конструкции – этот параметр зависит от размера профильной трубы и толщины ее стенок.
- Размеры садовой мебели из металла могут быть любыми, главное, точно рассчитать возможные нагрузки.
- Они выходят значительно дешевле, чем аналоги из других материалов.
- Конструкции получаются прочными, устойчивыми к высоким механическим нагрузкам.
- При правильном уходе и регулярном обновлении защитного покрытия металлические трубы имеют длительный срок службы.
Трубы профилированные бывают разного сечения: ромбовидные, круглые, прямоугольные и квадратные.

С этим материалом просто работать, если под рукой есть необходимый инструмент.
Для каркасов садовой мебели, используют в основном прямоугольную трубу сечением 20*40 мм. Ее средняя цена за погонный метр составляет 70-80 рублей, при толщине металла в 2-3 мм.
Многие предпочитают сделать садовые скамейки из дерева, пошаговую инструкцию изготовления с чертежами и фото можете посмотреть на нашем сайте.
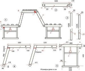
Чертежи с размерами лавочек и скамеек из профильной трубы
Прежде чем браться за изготовление чего-то аналогичного, неплохо было бы найти или разработать чертежи, по которым будет идти вся работа.






Подбирая чертеж нужно ориентироваться на свои личные требования. Материал подбирают так, чтобы конструкция справлялась с возможными максимальными нагрузками, помещалась в отведенное место, ну и просто нравилась.






Размер деталей каркаса необходимо соотносить с отделочным материалом, в качестве которого чаще применяются брусья, рейки и доски, но может быть использован и пластик и ДПК.
Некоторым нравятся полностью металлические изделия, но они не так удобны, ведь металл хорошо проводит тепло и будет сильно раскаляться под солнцем или промерзать зимой.

Зная размеры отделки, рассчитываются параметры основных частей скамейки (спинки и сидения), задается их форма. Данные также вносятся в чертежи.

Следует предусмотреть способы соединения деталей – под какими углами будут врезаться торцы и так далее.
Чертежи других вариантов скамейки:


















Дополнительные материалы для скамейки
Если говорить о полноценном изготовлении скамьи, то только металлом и деревом в работе не ограничишься. Имеется еще небольшой список материалов и расходников, которые понадобятся. Они перечислены в следующей таблице.
| Материалы, фото: | Описание: |
![]() Краска-грунт по металлу |
Финишное покрытие металла может быть разным. Часто применяют грунт-эмали, которые не нуждаются в подготовке поверхности, не считая ее зачистку. Наносится такая краска в несколько слоев. Покрывать ею можно даже ржавые места, но так поступать не советуем, так как срок службы защитного слоя будет сокращаться. |
![]() Круг для болгарки для резки металла |
Для каркасных конструкций металл постоянно приходится кроить по проектным размерам. Для резки применяются абразивные круги, устанавливаемые на болгарку или аналогичные инструменты.
Круги из того же материала применяют для шлифования металла, обработки сварных швов. |
![]() Металлическая щетка |
Перед покраской металл нужно зачистить. Задача – убрать всю ржавчину и обнажить блестящую его поверхность. На таком основании даже краска-грунт будет держаться намного лучше. |
![]() Обезжириватель |
Перед покраской металл обезжиривается. Это серьезно увеличит адгезию материала и способствует ровному наложению слоев ЛКМ. В качестве обезжиривателя можно использовать универсальные составы, которые являются обычным керосином, или его легкими сортами, например, уайт-спиритом. |
![]() Электроды для сварки |
Электроды также относятся к расходуемым материалам. Без них скамейки точно не собрать. |
![]() Набор сверл по металлу |
Сверлить понадобится немного, но в запасе иметь несколько сверл нужного диаметра нужно всегда. Отверстия делаются под болтовые и винтовые соединения. Крепят таким манером деревянную часть скамейки. |
![]() Болты и саморезы |
Опять же, необходимы, чтобы закрепить деревянные части каркаса. Иногда применяются для соединения и металлических деталей, хотя преимущественно выбирают именно сварку. |
![]() ![]() Материалы для обработки древесины |
Мы объединили их в одну строку, так как применяться могут разные варианты. Отметим антисептические пропитки, которые существенно увеличивают срок службы дерева под открытым небом, пропитки для изменения окраса досок (сюда относятся масла, морилки, лазурь, воск и прочее), защитные составы и ЛКМ, создающие на поверхности водонепроницаемую пленку.
Указанные свойства могут сочетаться в некоторых материалах. Например, масло от воды качественно защищает и преображает цвет древесины, делая его более насыщенным.
|
![]() Наждачная бумага для эксцентриковой шлифмашинки |
Поверхность древесины необходимо тщательно обработать, чтобы она стала гладкой, безопасной и приятной на ощупь. Для этого ее шлифуют абразивами разной фракции. |
К этому многообразию прилагается следующий набор инструмента:
- Болгарка.
- Столярный угольник.
- Электродрель.
- Шлифовальная машинка.
- Молоток для сбивания окалины после сварки, да и вообще этот инструмент требуется всегда.
- Струбцины для предварительной фиксации деталей.
- Кисточки или небольшой валик для более ровного наложения краски.
- Сварочный аппарат.
- Рулетка, карандаш, маркер.
- Для создания криволинейных деталей требуется трубогибная установка


Также может пригодиться и прочая мелочевка, о чем вы узнаете сами, когда начнете собирать свою скамейку.
Металлическая скамейка своими руками
Далее будет представлена пошаговая инструкция по сборке самодельной скамейки из профильной трубы.
Сборка каркаса
В рассматриваемом примере мастер в качестве основного материала использовал согнутую в дугу профильную трубу 20*40 мм, которая осталась у него неиспользованной после сборки небольшой беседки из поликарбоната. Вот как дело происходило.

В первую очередь с гнутой тубы необходимо срезать залом, который образуется после трубогиба. Также можно отрезать и второй конец трубы, который остался прямым.

Далее выполняется разметка и резка деталей, из которых будет сделано основание. Как видите, для этого понадобился отрезок длиной 1 м. Кстати, по факту, участок трубы будет длиннее, так как рулетка устанавливается без учета закругления.
Срез у трубы должен быть четко перпендикулярным — чтобы его правильно наметить воспользуйтесь столярным угольником. Сначала делается одна деталь, после чего она же используется как шаблон, для вымерения второй.

Отмечаются более короткие детали – их будет 4 штуки, длиной ровно по 40 см. При этом учитывайте, что вымерять теперь необходимо длину трубы четко по радиусу, а не напрямую, как это было сделано ранее.
Составляем из полученных деталей боковые части каркаса скамейки, как они будут установлены после сварки. На этом этапе можно регулировать положение каждого элемента, добиваясь наиболее удобного.

Снова беремся за измерительный инструмент и болгарку. Теперь нам нужно выверить длину передних ножек, которая в рассматриваемом примере составила 46 см. В вашем случае могут получиться совсем другие значения, так как на них будет влиять крутизна изгиба трубы и вообще ваши собственные размеры, может у вас 2 метра роста и косая сажень в плече.
После описанных манипуляций начинается подгонка стыкуемых деталей. Основная сложность состоит в том, чтобы сделать срезы под правильными углами, иначе готовое изделие может быть непрочным и даже поведенным.
Работая с криволинейными деталями, невозможно использовать для этих целей специальные инструменты. Приходится рассчитывать только на собственный глазомер. Пример работы показан на следующем фото.

Советуем отмерять и отрезать детали поочередно. Перед тем как браться за болгарку перепроверьте по несколько раз, не забывая всем известную поговорку. Удостоверившись, что ошибок нет, пробуем выполнить подгонку. В некоторых местах могут потребоваться подработки. Не боимся их делать, пока собираем первую сторону, сейчас у нас куда больше возможностей для маневров. Вторая часть основания должна будет в точности уже соответствовать первой.
Вот что получилось в итоге.

Части первой стороны основания используются как шаблоны для второй. Детали делаются идентичными, иначе необратимо получатся перекосы при монтаже.
Точно по разметке выполняется сварка частей основания. Предварительно их рекомендуется зафиксировать при помощи струбцин.
Сначала сварка делается точечной, чтобы только прихватить соединения, не допустив перекоса металла. После этого швы провариваются полностью.

После сварки металл необходимо подготовить для дальнейших работ. Выполняется зачистка и шлифование деталей. Со сварных швов сбивается окалина, и болгаркой убираются неопрятные наплывы металла. Тут главное не перестараться, и не нарушить целостность шва.
Остальная поверхность обрабатывается металлической щеткой. В принципе, такую обработку можно было выполнить и заранее, так как к некоторым граням конструкции может быть неудобный доступ.
Далее уже от прямой профилированной трубы отрезается два куска по 155 см. С их помощью обе боковины будут связаны друг стругом. Детали придадут скамейке необходимую жесткость. Они привариваются спереди и сзади, образуя замкнутую раму, как это показано на следующей фотографии.

Сварные соединения также необходимо зачистить от окалины и сделать максимально ровными.
Доски будут устанавливать поверх этой рамы. Крайние будут иметь опору по длине на металлическую раму, а центральные при этом могут прогибаться. Чтобы такого не случалось, можно вварить одну короткую поперечину в середине, или две, разбив раму на три равных сегмента.
Также следует усилить и спинку в середине. Благо, на это еще остался кусок гнутой трубы. Усиление ставится без ножек.
Вершины спинки также необходимо соединить отрезком профилированной трубы. Вымеряем его длину по факту и ввариваем в уже почти готовую конструкцию.

Так как сидение с боковинами соединены только двумя точками с каждой стороны, говорить о надежности скамейки пока не приходится. Для увеличения прочности стоит добавить хотя бы по одному укосу. Делаются они также из гнутых деталей, если таковые еще остались в вашем распоряжении.
К ножкам следует приварить пластины для увеличения устойчивости конструкции. Для их создания можно брать вырезанные стенки той же трубы, но лучше найти металл большей площади.
В нашей ситуации мастер проявил изобретательность и в качестве подпятников взял старые тормозные колодки, обточенные до ровности.

Обшивка каркаса
Для обшивки каркаса были приобретены профилированные доски толщиной 25 мм. При желании сэкономить, можно использовать любой удобный пиломатериал, но тогда придется потратить много времени на его обработку.

Осталось только прикинуть положение досок и прикрутить их, при работе с черновым пиломатериалом выполняют следующие действия:
- Если доски поведенные «вертолетом», их предварительно пропускают через рейсмус, попутно точно подгоняя размер каждого элемента.
- Затем они разрезаются на части одной длины, согласно вашим чертежам. Для работы лучше использовать торцевую пилу, чтобы срезы были точно под 90 градусов. Обрезать доски нужно со всех сторон.
- Боковые грани досок обрабатываются фрезерным станком или ручным фрезером для придания им формы.

Формирование фигурных граней ручным фрезером - Далее выполняется шлифовка материала – сначала используется абразив покрупнее (на 120), после чего он постепенно уменьшается вплоть до 300.
- Если на поверхности досок присутствуют трещины, их рекомендуется зашпаклевать, но только в том случае, если сверху ляжет укрывистая краска, иначе шпаклевка будет просвечивать и отличаться по цвету от дерева.
Возвращаемся к сборке скамейки. Выполнив предварительную раскладку, точно размечаем положение досок, чтобы не сместить их случайно. Электродрелью насверливаем отверстия, проходя одновременно толщу и металла, и доски.

Так как длина досок не была подогнана изначально, торцуем их уже после установки, прочертив одну прямую линию. Применяем для этого угольник и циркулярную пилу.

По краям скамейки оставляем напуски доски по 10 см. Так она и красивее смотреться будет, и полезная посадочная площадь увеличится.
То же проделываем и со спинкой – отступы между этими досками могут быть больше, так как такой нагрузки, как на сидение, на них не будет.
Дальнейшая обработка металла и дерева
Когда детали готовы, скамейку нужно разобрать, поэтому заранее не нужно затягивать болты – они просто вставляются в отверстия. Делаем это для удобства окрашивания как каркаса, так и деревянных частей конструкции.
- Последняя обработка металла, которая была выполнена – это зачистка металлической щеткой. Далее он должен быть промыт обезжиривателем. Для этого состав наливается на мягкую ветошь и растирается по всем деталям конструкции.
- Затем выполняется покраска металлического каркаса. Краска выбрана молотковая, а значит, покрытие будет прочным и эстетичным. Нанести состав нужно в два слоя, давая время для промежуточной сушки.

Преимущество красок с молотковым эффектом в том, что создается не простое одноцветное покрытие, а переливающаяся поверхность, чем-то напоминающая гранит. Это можно увидеть при ближайшем рассмотрении.

Далее обрабатываем доски. Покрыть их можно темным лаком, который придаст материалу благородный оттенок. Если желаете глубокого изменения цвета, советуем перед нанесением лака пропитать дерево морилкой, которая окрасит его в толще.

Заключение
После того как лаки и краски высохнут, можно приступать к финишной сборке скамейки.
Начинается все с установки пластиковых заглушек, которые можно приобрести на тех же металлобазах. Они не позволяют влаге проникать внутрь труб, откуда они без обработки могут интенсивно коррозировать.

Далее на свои места прикручиваются доски. Гайки на болты накручиваем только через шайбы, и затягиваем надежно, но не переусердствуйте, чтобы не продавить дерево с лицевой стороны.
Вот что получилось в итоге.

Такая лавка украсит любой дворик, при этом она будет прочной и надежной. При необходимости в описанную конструкцию можно внести поправки и доработки с целью усиления или украшения.
Рекомендуем прочесть: как сделать подушки для садовой мебели.
