Чтобы двор стал красивым и функциональным, нужно установить садовую мебель для отдыха или приёма пищи на свежем воздухе. Это часть ландшафтного дизайна.
Ее можно купить в готовом виде, или сделать самому. Чертежи садовой мебели необходимы для самостоятельного изготовления.

Почему нужно взяться за дело самому
Не все уверены в своих силах относительно результата такой работы, но нужно учесть, что к садовой мебели не предъявляется эстетических требований к внутридомовой. Мелкие огрехи и грубость деталей даже выгодно смотрятся в саду. Отсутствие выверенных линий делает предметы ближе к природе.

- При этом получается хорошая экономия денег. Свободные средства для сада найдутся.
- Изделия получатся оригинальными, даже если придется работать по готовому чертежу. Вы выбираете материалы, обрабатываете их и украшаете. У соседей ничего аналогичного не будет точно.
- Для работы каждый будет брать хорошие материалы, поэтому мебель получится прочной и устойчивой.
- Сложно переоценить тот момент, что появляется возможность все подогнать под любые размеры и внешний вид участка, на которой мебель будет стоять.

- Можно самому выбрать дизайн садовой мебели. Если не брать в расчет сложные композиции для регулярного и похожих стилей, все делают просто путем изменения форм и окраса.
- Тот, кто сам сделал садовую мебель, всегда может ее доработать, модернизировать или добавить новые предметы в таком же стиле. Для покупных товаров это проблема. Цена вопроса изменения конструкции будет незначительной.

- Можно использовать разные материалы. Это может быть дерево, металл, пластик, ДПК, фанера. Практически для всех материалов, не считая металла, требуется один и тот же инструмент.

Теперь назовем отрицательные моменты:
- Если вы новичок, то не рассчитывайте сразу сотворить что-то шедевральное. Даже действуя пошагово по инструкции, есть вероятность сделать что-то не так. Будьте готовы, что часть материала может быть вами испорчена.
- Испорченный материал – это выкинутые зря деньги, поэтому тщательно соотнесите свои таланты со схемой.
- Для обработки материалов, например дерева и металла, требуется хороший инструмент, без которого работа затянется надолго.
Готовые чертежи для изготовления мебели для дачи и сада
































Материалы для садовой мебели
Итак, из чего лучше сделать садовую мебель?
| Материал, фото: | Описание: |
![]() Мебель из деревянных поддонов |
В 90% случаев делается садовая мебель из древесины, так как она доступна и легко обрабатывается. Этот материал выглядит очень благородно, даже если использовать старые доски. На фото слева показан диван, сделанный из поддонов, которые можно получить практически даром.
Важно! Конструкции из дерева просто собирать, однако для нормальной обработки потребуется электрический инструмент, иначе работа растянется надолго.
Из достоинств — прочность и экологичность, а из недостатков – боязнь влаги и периодическая обработка. Дерево используют в разном виде: доски, бревна, брусья, рейки, цельные спилы стволов и толстые ветки. Для компактных конструкций можно использовать даже вагонку. |
![]() Мебель из металла – профильная труба |
Металлическая мебель редко делается в чистом виде, так как материал этот обладает высокой теплопроводностью, из-за чего касаться его неприятно ни в жару, ни в холод. Поэтому из него делают очень прочные каркасы, обшиваемые деревом или другими материалами.
Чтобы сделать такую садовую мебель потребуется умение обращаться со сварочным аппаратом, и сам этот инструмент. Металл хорошо гнется в дуги станком, так можно создавать конструкции разной формы. Их можно украсить декоративной ковкой. Варианты кованой мебели представлены в статье на нашем сайте. |
![]() ДПК и профтруба |
Сам древесно-полимерный композит для построения каркаса использовать нельзя. Зато этот материал подойдет для обшивки.
Он имеет уникальные свойства. Пусть он внешне проигрывает дереву, зато ДПК устойчив к влаге и ультрафиолету, это позволяет служить ему долго без необходимости обновления покрытия. |
![]() Бетонная садовая мебель |
Очень креативно — сделать бетонную садовую мебель. Такие предметы уже могут считаться малыми архитектурными формами. В разных дизайнах бетон пользуется популярностью.
Служить такая мебель будет очень долго, и смотрится она красиво, но есть у нее ряд недостатков:
|
ДПК в этом списке выглядит немного чужеродно, так как материал этот стоит достаточно дорого, но мы его упомянули за его свойства.
Идеи мебели для сада и дачи










































Делаем садовую мебель самостоятельно
Теперь давайте разберем основные тонкости строительства такой мебели. Начинается все с проектирования. В этой главе будет разобрано несколько чертежей.
Чертежи с размерами деревянного кресла
В саду должны быть места для сидения. Прекрасным решением будет удобное и красивое кресло.

- На этом чертеже — деревянное садовое кресло. Оно имеет наклонную спинку и сидение анатомической формы, что делает его удобным, несмотря на твердость самого материала.
- Может показаться, что устроено кресло слишком сложно, и в его конструкции есть фигурные детали, но все они сделаны из досок и реек – просто их потребуется вырезать из массива электрическим лобзиком.
- Кресло имеет следующие детали: 2 стойки с дополнительными подпорками для поручней; сами поручни; 2 боковые направляющие, которые и задают анатомическую форму сидения; направляющие и перемычки для спинки; рейка для обшивки сиденья и спинки.
- Все соединения выполняются на саморезы. Чтобы такое кресло было прочным, нужно точно выполнять спилы при формировании деталей. Плотная подгонка также продлит срок службы.
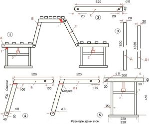
Чертежи стола с лавочками
Также не обойтись и без удобного и прочного обеденного стола. На следующей схеме показано строение простого и функционального столика, совмещенного с лавками.

Такая садовая мебель подходит детям, хотя можно увеличить размеры, и взрослым на ней будет так же удобно. В конструкции как основной материал выступают доски и брусья. Состоит она из следующих деталей:
- Столешница сделана она из семи досок сечением 100*20 (можно взять и более толстые пиломатериалы), и трех брусков, которыми эти доски перевязаны. Размеры у столешницы составляют 1400*700 мм.
- Сами укосы. Для их изготовления используется брус сечением 50*50 мм. Его длина – 600 мм. Края этих деталей запилены под углом, чтобы была возможность удобно стыковать их со стальными уголками. Для связки используются саморезы 5*40 и болты М 10*60.

- Ножки представляют собой раскосые фермы, состоящие из 6-ти деталей разного размера и формы. Для их изготовления использована та же самая доска, что и на столешнице. Ножки пересекают две параллельные перемычки, которые выступают за границы столешницы. К ним будет крепиться сидение, а также есть возможность дополнительно присоединить и спинку.
- Последняя деталь – это сидение. Тут использована более мощная доска 150*30 мм. По краям с определенным отступом накручены бруски, которые будут вставляться между поперечинами ферм, и стягиваться с ними на саморезы или болты.
Несовершенство данной конструкции заключается в том, что не к чему крепить центральные подпорки, если захочется увеличить длину стола и лавок, а без дополнительной подпорки сидение будет прогибаться. Поэтому схему придется усложнить и немного переделать, если захотите большой стол для взрослых.
Чертежи и примеры мебели из поддонов
Не обойтись в саду и без надежной и большой деревянной скамейки, которую можно исполнить в виде дивана. В качестве основного строительного материала можно взять поддоны, которые уже подогнаны под нужные размеры, так что остается только выполнить правильную сборку.
Для сборки такой лавки понадобится всего 6 паллет. На схеме, к сожалению, не видно, как их нужно правильно кроить и соединять, зато четко показаны все размеры. А с первым, в принципе, каждый сможет разобраться самостоятельно.


Главный недостаток поддонов в том, что дерево для них не проходит изначально такую обработку, чтобы соответствовать мебельному материалу. Из-за этого может потребоваться их частично или полностью разобрать и собрать повторно. Однако сам процесс строительства несложен, да и готовые результаты получаются интересными внешне и очень прочными.
Просмотрите следующую фото галерею, в которой показаны разнообразные варианты садовой мебели из паллет:


















Чертежи и размеры кресла-качалки
Если имеется опыт самостоятельной сборки мебели, то можно поставить себе более сложную в реализации задачу. На следующем чертеже представлено настоящее кресло-качалка.

В глаза сразу бросается большое количество криволинейных деталей, особенно если взглянуть на сиденье. Все они аккуратно вырезаются из цельных досок, в которых не должно быть трещин и выпадающих сучков, иначе с нагрузкой от человеческого тела они не справятся.
Особенность данной конструкции в том, что основные соединения исполняются по принципу шип-паз, причем на деталях формируются круглые шипы. Делается это при помощи специальных фрез для скруглений.
Каждая деталь тщательно шлифуется. Все не проклеиваемые соединения рекомендуется обрабатывать парафином, что избавит от появления скрипов в дальнейшем.
Все детали, из которых состоит кресло, показаны на чертеже. Там же указаны их размеры и количество.
Представленное кресло-качалка достаточно сложное в исполнении. Как вариант можно собрать что-то попроще.


















Пример сборки садового кресла
Представленные схемы и чертежи помогут самостоятельно собрать садовую мебель, но пошаговый процесс сборки облегчит весь процесс.
Этапы самостоятельного изготовления деревянного кресла:
- Начинаем с заготовки материала. Для сидений будет использоваться брус 50*50 мм и длиной 500 и 600 мм. Для ручек и спинки пойдут доски 15*150 длиной по 600 и 670 мм.

- Изготавливаем раму, соединяя в прямоугольник бруски по 600 и 500 мм. Для точного их выставления нужно использовать угольник. Спилы торцов бруса должны быть ровными – сделать таковые можно при помощи стусла или торцевой пилы. Проще всего выполнить соединение при помощи саморезов, но гораздо надежнее применить стык шип-паз, но такой подход требует хорошего инструмента и опыта работы с деревом. Перед вкручиванием самореза предварительно насверливается отверстие, чтобы материал не треснул.

- Далее к полученной раме привязывается еще три бруска, чтобы получилась конструкция, как на следующем фото. Это будет спинка, высота которой равна 50 см, плюс толщина перемычки (еще 5 см).

- Теперь нужно установить ножки. По отношению к сидению они будут под углом, который можно создать, просто подложив под переднюю часть рамы доски. В рассматриваемом случае уклон дали в 10 см на длину сидения. Длина передних ножек составляет 55 см. Крепятся они на саморезы к раме, выставляясь при этом по уровню.

- Электрическим лобзиком из досок вырезаются красивые фигурные поручни. Форму им можно придать любую понравившуюся.

- Заготовки шлифуются. Сначала абразив берется более крупный, а потом постепенно уменьшается. Каждая деталь обрабатывается в несколько проходов, пока она не станет идеально гладкой. Кстати, если у вас нет в наличии фрезера, скруглить углы досок можно шлифовальной машинкой.

- Ручки прикручиваются к каркасу. Их положение можно выверить по уровню, но лучше сделать их параллельными сидению, но для этого понадобится точно подогнать угол среза передних ножек.

- Вырезаются и монтируются задние ножки. Для них используем прочные доски. Задаем любой комфортный угол по отношению к ножкам передним.

- Далее все доски, которые предназначались для спинки и сидения, необходимо зашлифовать, после чего выполняется их установка.

Осталось только дошлифовать каркас до конца, зашпаклевать все шляпки саморезов и выполнить покраску или обработать маслом для садовой мебели.
Читайте на нашем сайте: как сшить мягкие подушки для уличной садовой мебели.

Конструкция весьма простая, но смотрится приятно. Сад при установке такого предмета мебели точно преобразится.
Видео: изготовление и сборка дачной мебели
В завершение
Сборка садовой мебели – это увлекательное и несложное дело, особенно если под руками есть тщательно разработанные чертежи. Пользуйтесь информацией, подходите к делу с умом.